tvin270584

— постов 307. 930 место в топе
Чаще упоминает: Налич
 
Нужен сантехник в районе метро Марксистская ? Мы точно сможем Вам помочь! Телефон Слесаря Сантехника 8 (495) 235-25-21 Мы предоставляем следующие услуги: Вызов ...
22-10-2021топ 100 блогов tvin270584
Развернуть
 
Нужен сантехник в районе метро Крестьянская застава ? Мы точно сможем Вам помочь! Телефон Слесаря Сантехника 8 (495) 235-25-21 Мы предоставляем следующие услуги: ...
22-10-2021топ 100 блогов tvin270584Реклама
Развернуть
 
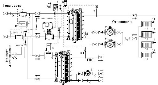
Теплообменник для отопления дачного дома или коттеджа, в которых присутствует котел и автономная система водяного обогрева , стремительно набирает популярность и становится ...
12-10-2021топ 100 блогов tvin270584
Развернуть
 
Тепло в доме — то, что необходимо каждому человеку. Благодаря современным отопительным системам можно удерживать комфортную обстановку в доме и поддерживать необходимую ...
08-10-2021топ 100 блогов tvin270584
Развернуть
 
Существует огромное количество всевозможных растворителей, многие из которых отличаются неповторимыми, уникальными качествами. В статье мастер сантехник расскажет, какой ...
02-10-2021топ 100 блогов tvin270584
Развернуть
 
Для того чтобы в холодный зимний период обеспечить в жилом помещении необходимые условия для проживания , нужны устройства, которые помогали бы поддерживать нужный температурный ...
29-09-2021топ 100 блогов tvin270584
Развернуть
 
Энергозависимые отопительные газовые котлы очень чувствительны к качеству электропитания. При скачках напряжения они легко могут выйти из строя, доставив вам массу неприятностей ...
27-09-2021топ 100 блогов tvin270584
Развернуть
 
Владелец газовой колонки несет личную ответственность при её использовании. Ведь в случае её неправильного подключения или эксплуатации могут пострадать люди, причем не только ...
25-09-2021топ 100 блогов tvin270584
Развернуть
 
Не обманешь — не проживешь. Эту сомнительную истину исповедуют многие, в том числе и некоторые продавцы автономной канализации . В статье мастер сантехник расскажет, как ...
19-09-2021топ 100 блогов tvin270584
Развернуть
 
Нужен сантехник в районе метро Смоленская ? Мы точно сможем Вам помочь! Телефон Слесаря Сантехника 8 (495) 235-25-21 Мы предоставляем следующие услуги: Вызов ...
15-09-2021топ 100 блогов tvin270584
Развернуть